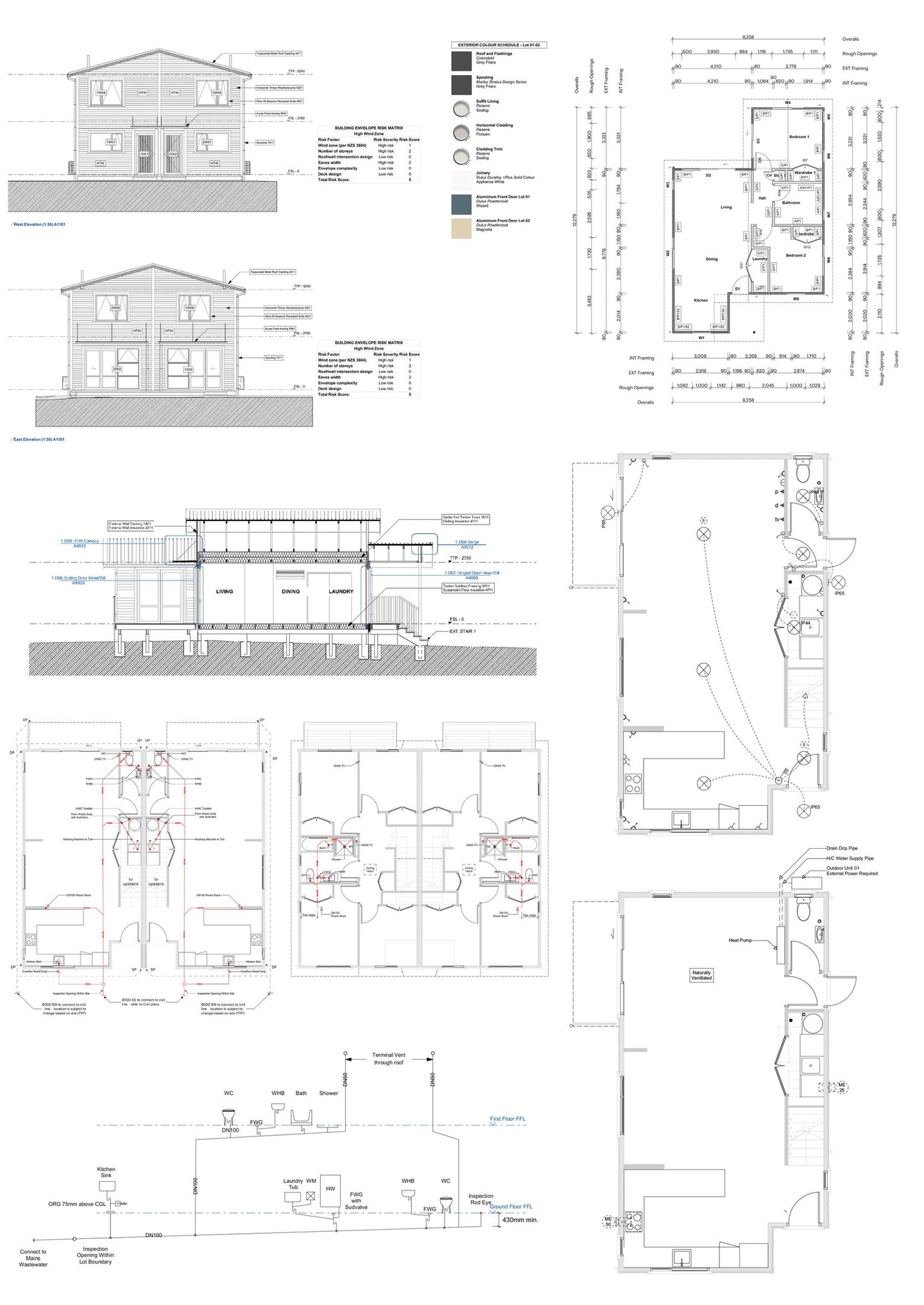
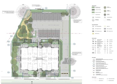
ARCHITECTURAL & LANDSCAPE DRAWINGS
The architectural and landscape architectural drawings of multiple standalone, duplex, terraced housing, and walk-up projects that I led. My key responsibilities include preparing RC and BC drawings and documents, hosting bulk and location meetings, coordinating with engineers and clients, attending pre-application meetings, and handling final submissions. In addition to completing my tasks on time, I also assist other disciplines in solving various design issues.
Location
Year
Auckland, NZ
2024
Client
Kainga Ora
Status
On Site














